
所在區域:澳大利亞
房源面積:53㎡ - 110㎡
物業類型:公寓(一房、二房)
房源位置:1055 Ann Street, Newstead, Brisbane
房源價格:¥224萬-470萬|45.2-94.4萬澳元
裝修情況:精裝
房產產權:永久產權
咨詢熱線:4008-399-299
預估年租金回報:5.8%
房源特色:精品公寓、度假房、學區房
交房時間:現房
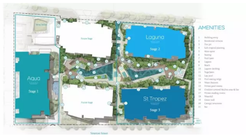
Laguna的設計理念完美融合了豪華生活與都市的繁華,是內城區安居的新典范。兩層階梯式的瀑布、綠洲景觀花園還有瀉湖泳池環繞四周,眾多壯觀美景可盡情享受。
共有 189 套豪華單臥室和雙臥室公 寓,分屬 20 個樓層,便利的零售區就位于地面層,這一設施齊全的時尚公寓絕對是理想之選,這里擁有豐富的世界級餐飲、購物和娛樂選擇,還有四通八達的可靠公共交通,內城區生活從未如此輕松。
周圍亞熱帶綠化帶、瑜伽草坪、數百萬澳元巨額打造人工沙灘及游泳池、小型健身泳池、私人泳池間、戶外廚房區域、酒吧、私人閱讀室…你會發現,城區生活也可以如此愜意。
Newstead Central完美地將度假式奢華享受與城市精致生活融為一體,每一間公寓的設計都能讓您耳目一新。小至開關,大至裝潢,內外均精心設計,一切細節精益求精,每一處細節都盡顯高貴。所以您的公寓會具備最高質量的裝修和裝飾,如再生石質理臺面、純羊毛地毯、鋪設地磚的起居區和頂級廚具,在Laguna,您值得擁有這最好的一切。
一站直達CBD,鬧中取靜為昆士蘭州最宜居區域之一亦是莘莘學子首選居住地。
租金收益率高達5.8%,以房養學好選擇。15%人口周薪超2500澳幣,是名副其實富人居住地,房價和租金普遍高于布里斯班均價30%。
該區至2031年新增9.8萬職位,其中多數是醫療類高薪職位,進一步推動房價上揚。
沙灘、瑜伽草坪、垂直花園、健身房、BBQ燒烤區、底層零售商鋪等
交通
距離巴士站 (240米)
Bowen Hills火車站 (950米)
Teneriffe Ferry Terminal輪渡 (1公里)
學校
Brisbane Central Primary (1.9公里)
Brisbane College of Photography (1.3公里)
Uni of QLD Graduate School of Medicine (1.9公里)
James Cook University (2.7公里)
QUT Kelvin Grove Campus (3.9公里)
購物中心
Woolworths Newstead (500米)
James Street Markets 詹姆斯大街市場 (650米)
Brunswick Street Mall 布朗斯維克大街購物中心 (1公里)








53-78平米
1房1衛+車位

68-110平米
2房2衛+車位
(以上戶型僅供參考)
電話:4008-399-299 郵箱:ymgj@univisa.com.cn 聯系我們 網站地圖
本版面設計已工商備案 未經書面授權禁止復制或建立鏡像
? Copyright 2025 永銘國際 www.tsderun.com 蜀ICP備12013405號-2